ศุภณัฐ ปูดแปลนตึก สตง. มีห้องสันทนาการ ใช้ภาษี 100 ล้าน อึ้งครบครัน เวทีใหญ่-ห้องแต่งตัว-ห้องครัว คาดไว้จัดปาร์ตี้-งานเกษียณ ใช้ไฟหลวงฉ่ำ ๆ
![ตึกสตง ตึกสตง]()
ภาพจาก เฟซบุ๊ก ศุภณัฐ มีนชัยนันท์ - Suphanat Minchaiynunt
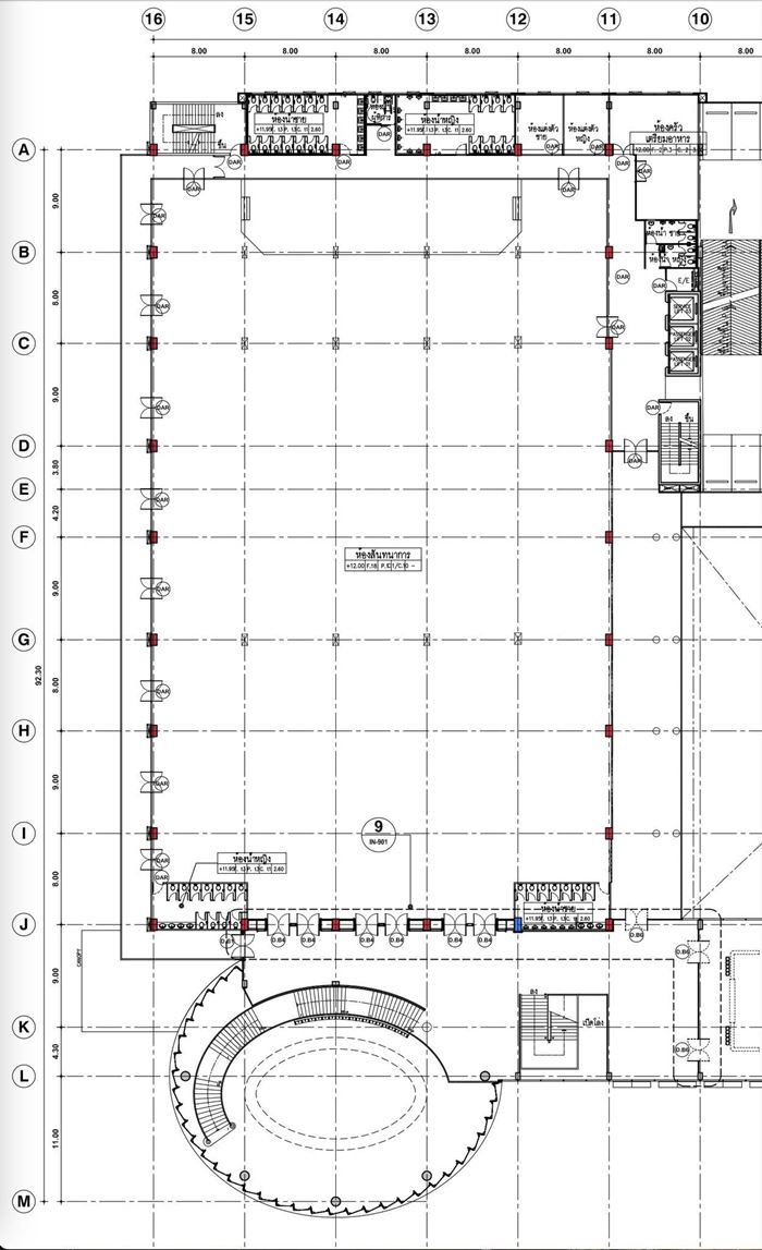
วานนี้ (11 เมษายน 2568) นายศุภณัฐ มีนชัยนันท์ สส.กทม.พรรคประชาชน โพสต์เฟซบุ๊กส่วนตัว เปิดข้อมูลแปลนตึก สตง. พบว่า มีห้องขนาดใหญ่พื้นที่ 3,000 ตารางเมตร เป็นห้องสันทนาการ ซึ่งคาดว่าไว้ใช้สำหรับจัดปาร์ตี้โต๊ะจีน งานเกษียณ ฉลองปีใหม่ โดยไม่ต้องเสียเงินไปเปิดร้าน
![ศุภณัฐ มีนชัยนันท์ ศุภณัฐ มีนชัยนันท์]()
ภาพจาก เฟซบุ๊ก ศุภณัฐ มีนชัยนันท์ - Suphanat Minchaiynunt
โดย นายศุภณัฐ ระบุว่า "ห้องสันทนาการ #ตึกสตง ขนาด 3,000 ตรม. ห้องเดียว ใช้เงินภาษีกว่า 100 ล้านบาท
มีเวทีขนาด 150 ตรม. พร้อมห้องแต่งตัวชาย/หญิง, ห้องครัวเตรียมอาหาร, ห้องน้ำ 45 ห้อง, ลิฟท์ 3 ตัว, บันได 4 มุม คาดว่า ไว้จัดปาร์ตี้โต๊ะจีน งานเกษียณ/ฉลองปีใหม่ ไม่ต้องเสียเงินไปปิดร้าน ใช้ที่หลวง ไฟหลวง เงินหลวงฉ่ำ ๆ
กลม ๆ ด้านหน้า คือโถงพร้อมบันไดโค้ง - ฟีลประมาณ โถงโรงแรม ที่มีบันไดวนสวย ๆ ไว้ให้บ่าวสาวถ่ายรูปจูงมือเดินลงบันไดนะครับ"
![ตึกสตง ตึกสตง]()
ภาพจาก เฟซบุ๊ก ศุภณัฐ มีนชัยนันท์ - Suphanat Minchaiynunt

ภาพจาก เฟซบุ๊ก ศุภณัฐ มีนชัยนันท์ - Suphanat Minchaiynunt
วานนี้ (11 เมษายน 2568) นายศุภณัฐ มีนชัยนันท์ สส.กทม.พรรคประชาชน โพสต์เฟซบุ๊กส่วนตัว เปิดข้อมูลแปลนตึก สตง. พบว่า มีห้องขนาดใหญ่พื้นที่ 3,000 ตารางเมตร เป็นห้องสันทนาการ ซึ่งคาดว่าไว้ใช้สำหรับจัดปาร์ตี้โต๊ะจีน งานเกษียณ ฉลองปีใหม่ โดยไม่ต้องเสียเงินไปเปิดร้าน

ภาพจาก เฟซบุ๊ก ศุภณัฐ มีนชัยนันท์ - Suphanat Minchaiynunt
โดย นายศุภณัฐ ระบุว่า "ห้องสันทนาการ #ตึกสตง ขนาด 3,000 ตรม. ห้องเดียว ใช้เงินภาษีกว่า 100 ล้านบาท
มีเวทีขนาด 150 ตรม. พร้อมห้องแต่งตัวชาย/หญิง, ห้องครัวเตรียมอาหาร, ห้องน้ำ 45 ห้อง, ลิฟท์ 3 ตัว, บันได 4 มุม คาดว่า ไว้จัดปาร์ตี้โต๊ะจีน งานเกษียณ/ฉลองปีใหม่ ไม่ต้องเสียเงินไปปิดร้าน ใช้ที่หลวง ไฟหลวง เงินหลวงฉ่ำ ๆ

ภาพจาก เฟซบุ๊ก ศุภณัฐ มีนชัยนันท์ - Suphanat Minchaiynunt






